Thiết kế nhà vừa ở vừa cho thuê kinh doanh - Kiến trúc D.O.O.R.W.A.Y
Close

Tin tức chung

31/03/2022

Thiết kế nhà vừa ở vừa cho thuê kinh doanh: Xu hướng & tổng hợp các mẫu thiết kế tiện lợi nhất

Tại các thành phố lớn và khu vực đông dân cư, các mẫu thiết kế nhà vừa ở vừa cho thuê kinh doanh trở nên khá phổ biến. Các chủ đầu tư, các chủ hộ gia đình hướng đến những thiết kế thuận tiện nhất đảm bảo kết hợp hài hoà giữa công năng ở và cho thuê, kinh doanh. Trong nội dung dưới đây, hãy cùng Kiến trúc và Nội thất D.O.O.R.W.A.Y tìm hiểu rõ hơn về xu hướng thiết kế nhà ở kết hợp kinh doanh, cho thuê căn hộ và điểm qua những mẫu thiết kế tiện nghi và ấn tượng nhất bởi D.O.O.R.W.AY

1. Xu hướng thiết kế nhà vừa ở vừa cho thuê kinh doanh hiện nay

Cùng với sự phát triển của kinh tế, mô hình nhà ở kết hợp cho thuê kinh doanh được ưa chuộng khá nhiều vì không những đáp ứng được nhu cầu của người thuê mà còn đem lợi nhuận cho gia chủ. Những mẫu thiết kế nhà ở kết hợp kinh doanh thường được xây dựng ở khu vực mặt tiền thuận tiện, có nhiều người qua lại hoặc ở những ngã 3 và ngã tư giao nhau. Như vậy, khả năng thu hút được sự chú ý của khách hàng đến vị trí kinh doanh sẽ tốt hơn.

Không gian sống của gia chủ sẽ được tách biệt riêng với không gian kinh doanh. Đa số những loại hình nhà ở này có sự phân chia rõ rệt giữa hai khu vực. Khu vực kinh doanh sẽ nằm ở mặt trước hoặc tầng trệt, khu vực nhà ở sẽ nằm ở phía sau và các tầng bên trên

2. Đặc trưng chung của các thiết kế nhà vừa ở vừa cho thuê

Kiến trúc: Thiết kế những mẫu nhà vừa ở vừa cho thuê kinh doanh thường được thiết kế nhà theo lối kiến trúc đơn giản, hiện đại, khỏe khoắn. Sự đơn giản này trong thiết kế giúp mẫu nhà tối ưu về chi phí.

– Khu vực để xe: Một yêu cầu bắt buộc ở những mẫu nhà này là có không gian để xe cho gia đình và khách hàng. Nếu gia đình có điều kiện, có thể tách không gian này ra làm 2. Nhà ở kết hợp cho thuê thường sẽ bố trí tầng hầm để xe hoặc sân rộng. Ở khu phố, tầng hầm được sử dụng nhiều hơn bởi có thể tiết kiệm cho gia chủ 1 diện tích không hề nhỏ.

– Khu vực cho thuê tách biệt với không gian sinh hoạt gia đình nhất là với những loại hình cho thuê kinh doanh

– Không gian nhà vệ sinh riêng biệt ở các tầng. Thiết kế nhà vừa ở vừa cho thuê căn hộ cần đặc biệt chú ý vấn đề này để mang đến sự thoải mái, tiện nghi và riêng tư nhất cho người thuê và người chủ nhà

3. Những loại hình nhà ở kết hợp kinh doanh phổ biển

3.1 Mẫu thiết kế nhà vừa ở vừa cho thuê căn hộ

Cho thuê căn hộ kết hợp với những thiết kế nhà ở là loại hình kinh doanh phổ biến và được quan tâm nhiều nhất hiện nay. Tại các thành phố lớn không dễ để sở hữu một căn hộ chung cư hay nhà ở mặt đất trong khi khách hàng muốn thuê nhà thì mong muốn một chi phí không quá cao. Vì vậy, loại hình nhà vừa ở vừa cho thuê đã giải quyết trọn vẹn vấn đề này. Hơn nữa, các thiết kế nhà vừa ở vừa cho thuê hiện nay còn được chủ đầu tư trang bị sẵn nội thất đầy đủ đáp ứng tiện nghi cho người thuê

Mẫu thiết kế nhà phố 112m2 vừa ở vừa cho thuê căn hộ

Mẫu thiết kế nhà phố 112m2 vừa ở vừa cho thuê căn hộ

Khám phá 3D thiết kế nội thất không gian sinh hoạt nhà ở tại nhà phố vừa ở vừa cho thuê

3.2 Mẫu nhà vừa ở vừa cho thuê văn phòng

Kiến trúc các mẫu nhà thiết kế kết hợp ở và cho thuê văn phòng thường được chú trọng về các yếu tố: Mặt tiền và vị trí thuận lợi. có tầng hầm để xe rộng rãi, cửa kính bắt sáng, nên có không gian sân thượng sinh hoạt chung,..

"Không

Mặt bằng thiết kế nội thất văn phòng cho thuê

Mặt bằng thiết kế nội thất văn phòng cho thuê

3.3 Nhà ở kết hợp kinh doanh tầng 1

Thông thường với những mô hình thiết kế nhà ở kết hợp kinh doanh, tuỳ vào lĩnh vực kinh doanh mà chủ đầu tư sẽ lựa chọn mặt bằng các tầng để thuê. Phổ biến nhất vẫn là các loại hình kinh doanh ở tầng 1 đối với kinh doanh tạp hoá, siêu thị mini, cafe,.. Một vài loại hình kinh doanh và chủ yếu hướng về view đẹp cũng được ưa chuộng tại tầng trên cùng của ngôi nhà

Mẫu thiết kế nhà phố để ở kết hợp cho thuê căn hộ và kinh doanh quán cafe tại tầng 1:

Xem thêm: Thiết kế kiến trúc nhà phố tân cổ điển tại Linh Lang 

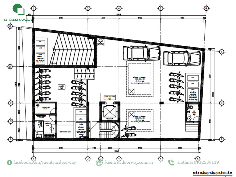
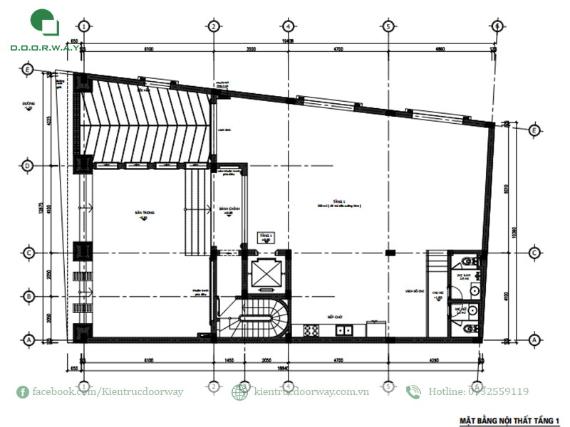
Mặt bằng thiết kế nhà vừa ở vừa cho thuê kinh doanh: Tầng  bán hầm và tầng 1 cho thuê kinh doanh:

4. Các mẫu thiết kế nhà vừa ở vừa cho thuê kinh doanh

thiết kế nhà vừa ở vừa cho thuê kinh doanh

Mặt bằng và thiết kế 3D nhà phố 5 tầng để ở kết hợp kinh doanh tầng 1 và cho thuê căn hộ

Kiến trúc nhà phố 6 tầng để ở kết hợp cho thuê căn hộ

Kiến trúc nhà phố 6 tầng để ở kết hợp cho thuê căn hộ

Thiết kế nội thất căn hộ cho thuê với mẫu nhà ở kiêm kinh doanh

Thiết kế nội thất căn hộ cho thuê với mẫu nhà ở kiêm kinh doanh

Thiết kế nhà phố vừa ở vừa cho thuê kinh doanh

Thiết kế nhà phố 5 tầng tại Nghi Tàm để ở kết hợp kinh doanh tại tầng 1

Xem thêm: Mẫu thiết kế nhà phố hiện đại để ở kiêm kinh doanh tại Nghi Tàm

Thiết kế nhà vừa ở vừa cho thuê căn hộ

Thiết kế nhà ở kết hợp cho thuê căn hộ

Xem thêmCác công trình thiết kế kiến trúc tiêu biểu nhất của D.O.O.R.W.A.Y

5. Đơn vị nào thiết kế nhà vừa ở vừa cho thuê kinh doanh

Kiến trúc và Nội thất D.O.O.R.W.A.Y là công ty chuyên về lĩnh vực thiết kế nhà ở và nội thất. Với 12 năm kinh nghiệm, công ty đã dần khẳng định vị thế của mình trong lĩnh vực thiết kế. 

Các mẫu thiết kế nhà ở kiêm kinh doanh mang đến cho khách hàng sự hài lòng. Hơn nhất là những trải nghiệm về không gian sống tuyệt vời. D.O.O.R.W.A.Y sáng tạo và linh hoạt trong từng thiết kế, tạo nên những điểm nhấn riêng. Cho mỗi thiết kế hoàn hảo mang phong cách của thương hiệu D.O.O.R.W.A.Y. và gu thẩm mỹ của chủ đầu tư.  

Tất tần tật về thuê thiết kế nhà ở Hà Nội uy tín

Trên đây là tổng hợp về xu hướng và các mẫu thiết kế nhà vừa ở vừa cho thuê kinh doanh phổ biến hiện nay. Nếu tìm kiếm ý tưởng và đơn vị thiết kế nhà ở kết hợp kinh doanh cho ngôi nhà của bạn, hãy liên hệ với D.O.O.R.W.A.Y để được các KTS chúng tôi tư vấn và thiết kế nhà đẹp và đúng ý.

—————————– 
CÔNG TY CỔ PHẦN KIẾN TRÚC VÀ XÂY DỰNG D.O.O.R.W.A.Y
Địa chỉ: Tầng 4, số 42 Trần Vỹ, Mai Dịch, Cầu Giấy, Hà Nội.
Hotline: 0932.559.119
0932559119

Tìm dự án

Tìm dự án